我为大荆紫荆花庭小区设计的一套装修图

[复制链接]
大荆建筑设计 发表于 2010-3-25 22:51:46 | 显示全部楼层 |阅读模式
721 4
本帖最后由 大荆建筑设计 于 2010-3-25 23:10 编辑

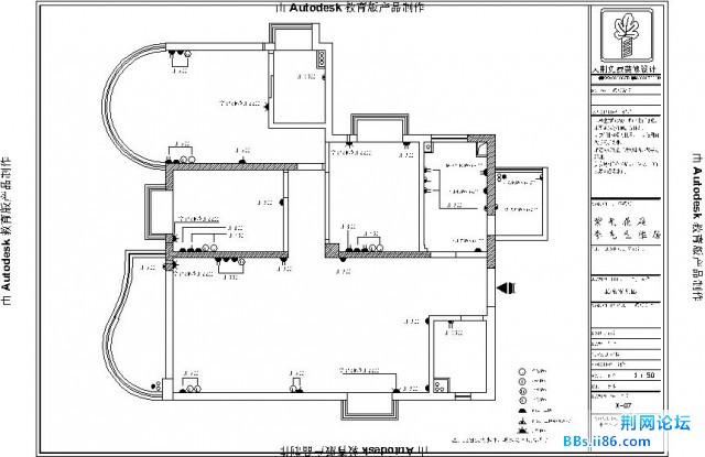
第一张 2.jpg
第二张 1.jpg
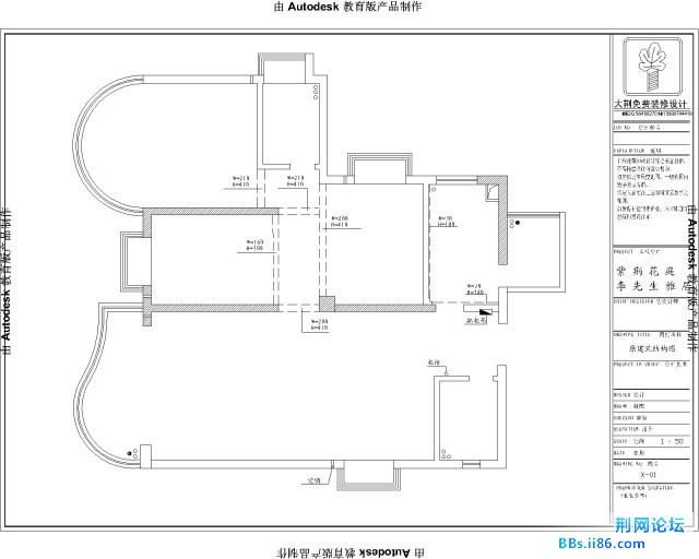
4.jpg
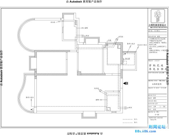
5.jpg
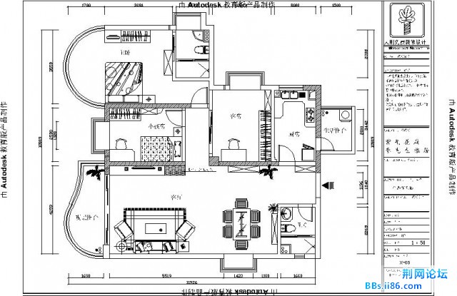
6.jpg
7.jpg
8.jpg
9.jpg
只要能翻译下面的话,免费给大家设计:用屋里的话说:大荆装修
2.jpg
3.jpg
全部回复(4)
只要能翻译下面的话,免费给大家设计:用屋里的话说:大荆装修
QQ:56456270 手机13868744419(上斑有点忙,发条短信给我,我看到了联系你)
2010-3-25 23:07:35
有用的时候找你
2010-3-26 00:52:23
都没房子啊
2010-3-26 07:20:09
有彩图没 看着过瘾
2010-3-26 21:30:28
您需要登录后才可以回帖 登录 | 会员注册
快速
回复
返回
列表
返回
顶部